Բնակելի Տուն A4
Վաճառված 
	Ֆինանսական գործընկեր
 
			
				Առաջարկում ենք  0% կանխավճարով հիփոթեքի հատուկ պայմաններ և եկամտահարկի վերադարձ ամսական մինչև ֏500,000:
				
			
			
| Տարեկան տոկոսադրույք | սկսած 12.5 % | 
|---|---|
| Կանխավճար | 0 % | 
| Առաջնային գրավ | Կառուցվող գույքը | 
| Երկրորդային գրավ *մինչև շին ավարտը | Դրամով ավանդ կամ Լրացուցիչ անշարժ գույք (* Ձեր կամ ծնողների բնակարան, տուն ...) | 
| Վարկի ժամկետ | Մինչև 20 տարի | 
| Ընտանիքի ամսական եկամուտներ | սկսած ֏850,000 | 
- Վարկի դիմում
					- Աշխատավարձի տեղեկանք
					- Բանկային քաղվածք 6 ամսվա
					- Լրացուցիչ գույքի վկայական
					- Լրացուցիչ գույքի հիմքեր
					- Լրացուցիչ գույքի գնահատում
					- Վարկառուների անձնագիր/սոց քարտ
					- Ամուսնության վկայական
				Ներառումներ
| Գնի մեջ ներառված է | |
|---|---|
| Հողամաս 375քմ | |
| Երկաթբետոնե կմախք | |
| Արտաքին և ներքին պատեր | |
| Մետաղական թիթեղով տանիք | |
| Պարիսպ | |
| Արտաքին դռներ և դարպաս | |
| Լուսամուտներ | |
| Բազրիքներ | |
| Արտաքին կոմունիկացիաներ* | 🔥գազ, 💧ջուր, ⚡հոսանք | 
| Անհատական կոյուղի | |
| Արտաքին երեսպատում | |
| Ներքին պատերի գաջում ու հատակների հարդարում | ╳ | 
| Պարսպի երեսպատում | ╳ | 
| Հոսանքալարեր, ներքին և արտաքին լույսեր | ╳ | 
| Ներքին ջրախողովակներ, ջեռուցման համակարգ | ╳ | 
| Բակի բարեկարգում, ծածկարաններ, լողավազան | ╳ | 
* Կան լրացուցիչ անհատական բաժանորդագրման ծախսեր
Հասցե՝ Առինջ, Մ. Մկրտչյան թաղ.
Թաղամասը գտնվում է Առինջ համայնքի նորակառույց և հեռանկարային Մ. Մկրտչյան թաղամասում, Ավանի Բաբաջանյան փողոցից 1400մ և Yerevan City Supermarket-ից 1600մ հեռավորության վրա
 
	Նախագիծը
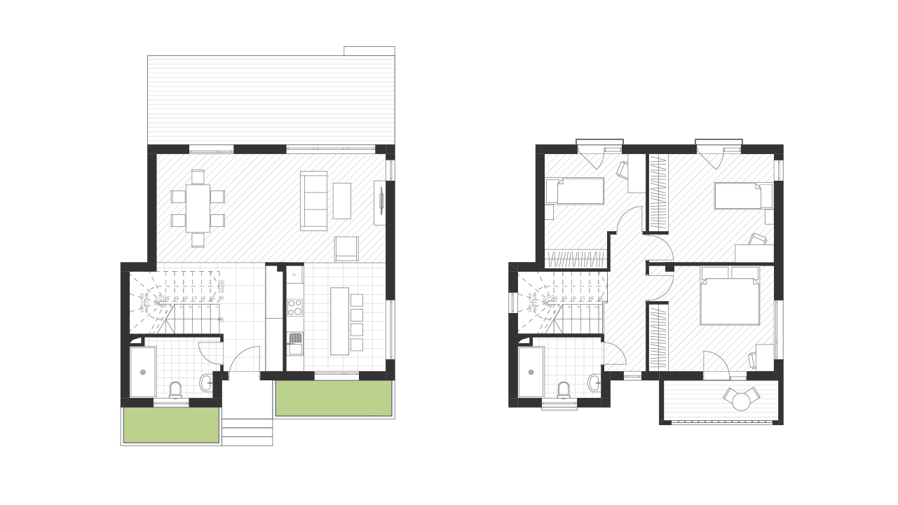
Նախագիծը ներառում է պարսպապատ 375 քմ հողատարածք Առինջում, երկհարկանի 155 քմ բնակելի մակերեսով առանձնատուն 3 ննջարան, ընդարձակ հյուրասենյակ և խոհանոց, 2 սանահանգույց, 2+ ավտոմեքենայի կայանատեղի և այգի
Անվանացանկ
| Անուն | Մակերես | 
|---|---|
| Առաջին հարկ | |
| Նախամուտք-միջանցք | 8.15 | 
| Սանհանգույց | 5.87 | 
| Ընդհանուր սենյակ | 28.42 | 
| Խոհանոց | 12.17 | 
| Տերասա | 26.43 | 
| Երկրորդ հարկ | |
| Միջանցք | 6.13 | 
| Սանհանգույց | 5.58 | 
| Ննջասենյակ | 14.48 | 
| Պատշգամբ | 5.20 | 
| Ննջասենյակ | 15.26 | 
| Ննջասենյակ | 11.79 | 
| Բնակելի | 155.0 | 
| Ընդհանուր հողամաս | 375 | 
 
									 
									 
									 
									 
									 
									 
									 
									 
									 
									 
									 
									 
									 
									 
									 
									 
									 
									 
									 
									 
									 
									 
									 
									 
									 
									 
									 
									 
									 
									 
									 
									 
									 
									